Document ID# 1201410
1998 Saturn SL2/SC2/SW2
 

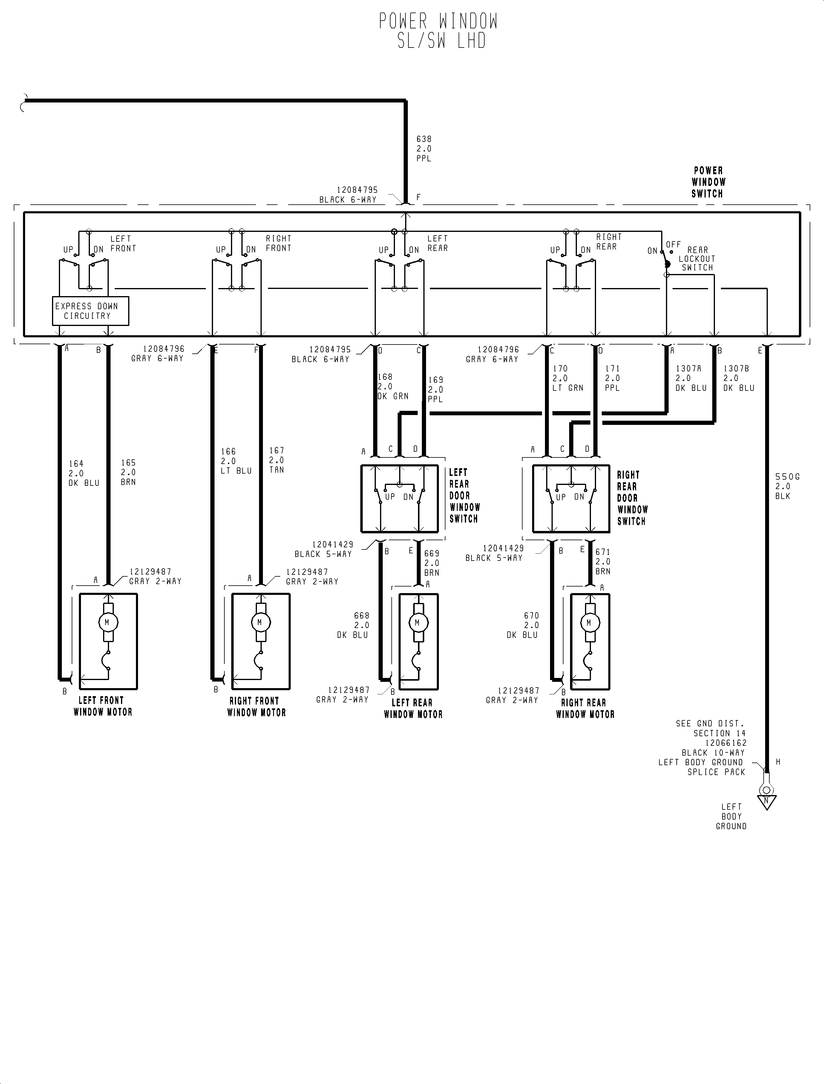
FIGURE Power Windows-Sedan and Wagon (2 of 2)(c)


Object Number: 908552  Size: FP
Click here for detailed picture of above image.

  Document ID# 1201410
1998 Saturn SL2/SC2/SW2