Document ID# 1201514
1998 Saturn SL2/SC2/SW2
 

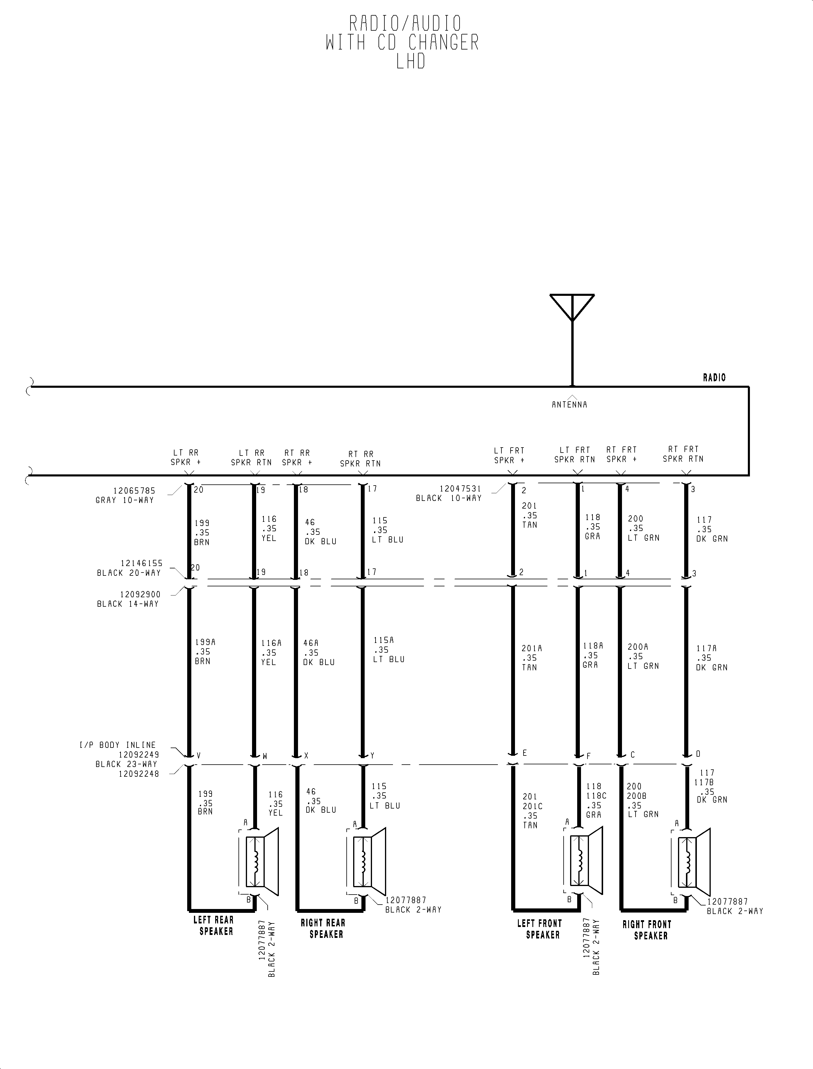
FIGURE Radio (Audio) System-with CD Changer Cont'd(c)


Object Number: 908877  Size: FP
Click here for detailed picture of above image.

  Document ID# 1201514
1998 Saturn SL2/SC2/SW2