Document ID# 1201330
1998 Saturn SL2/SC2/SW2
 

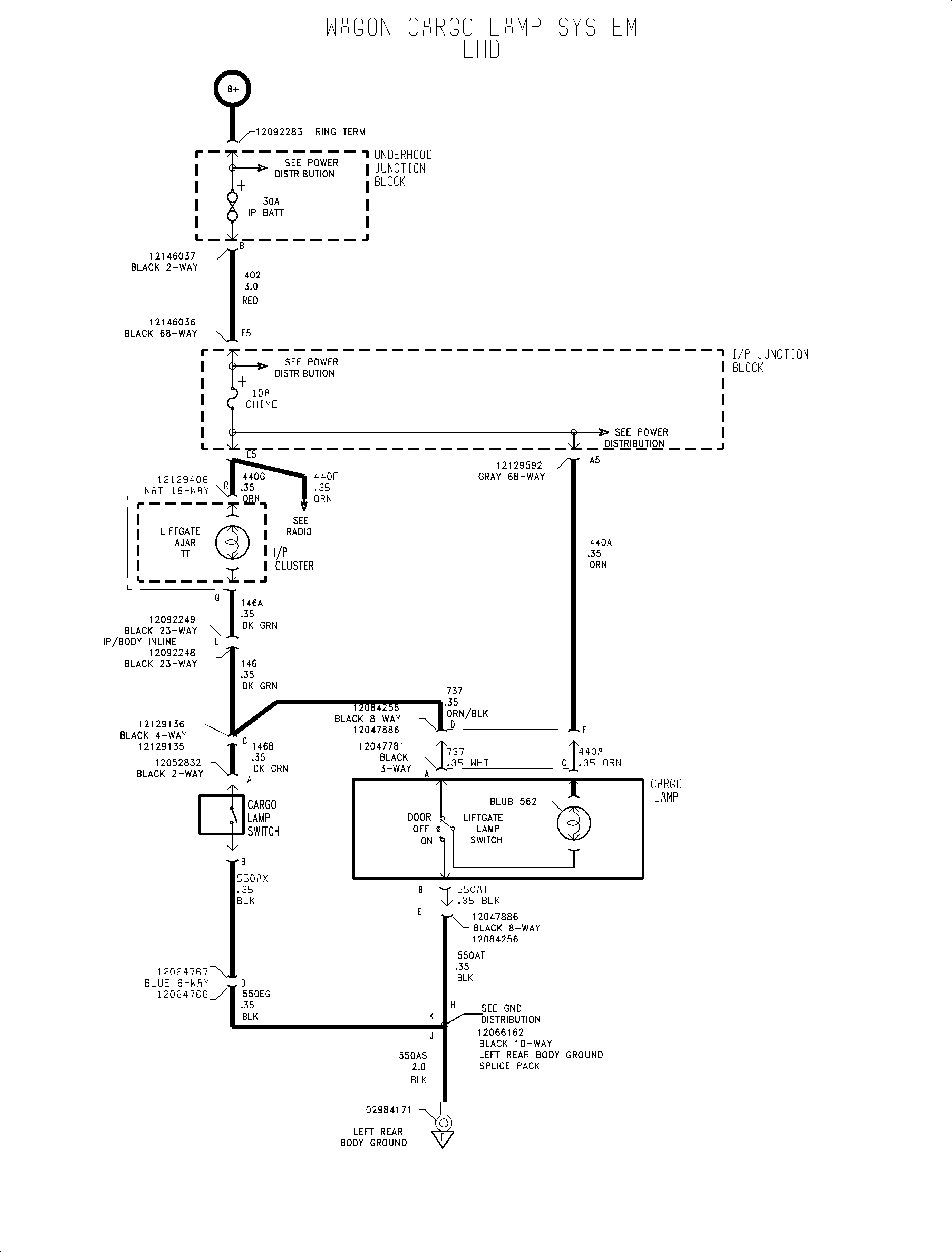
FIGURE Cargo Lamp-Wagon(c)


Object Number: 908516  Size: FP
Click here for detailed picture of above image.

  Document ID# 1201330
1998 Saturn SL2/SC2/SW2