Document ID# 1199512
1998 Saturn SL2/SC2/SW2
 

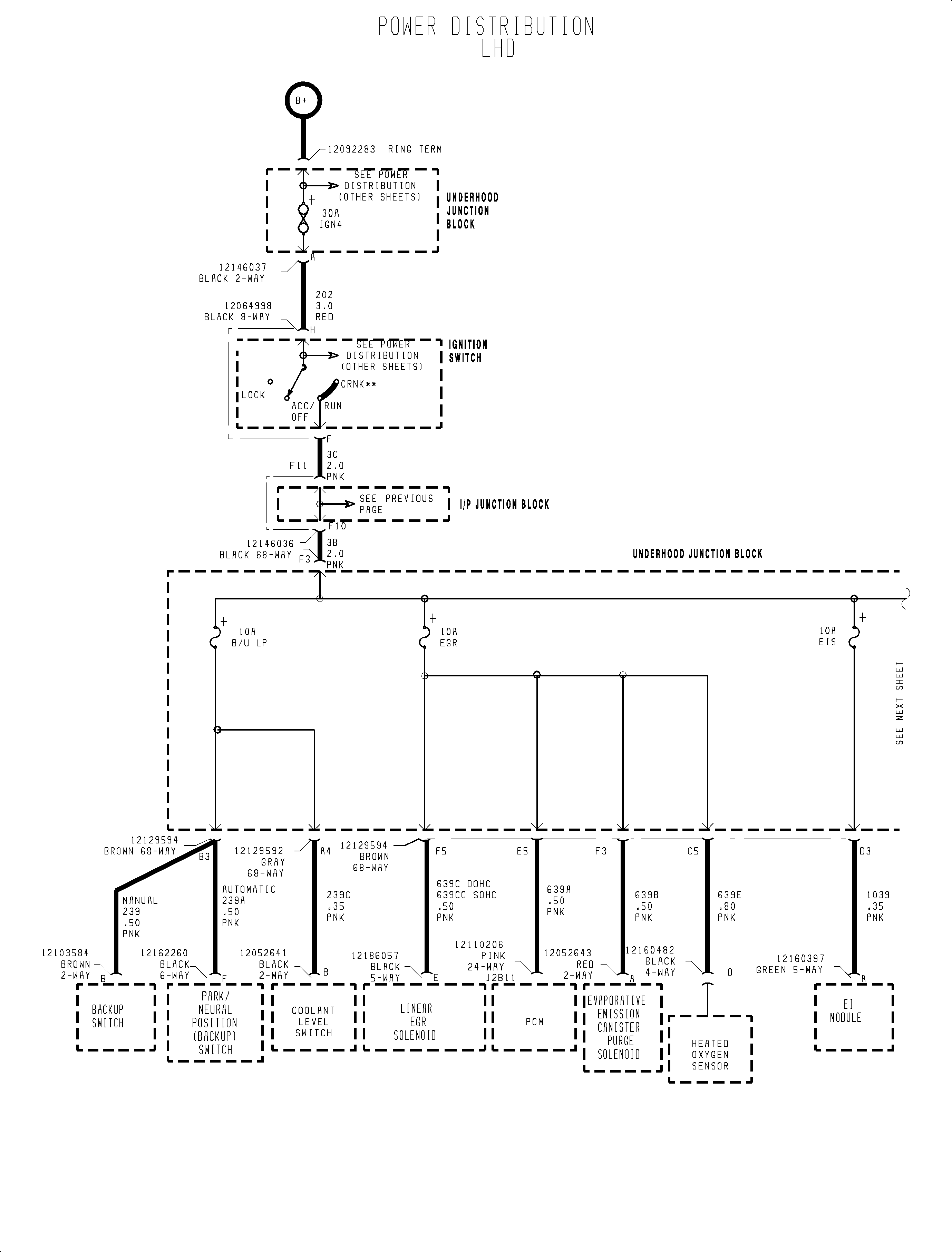
FIGURE 6 of 15(c)


Object Number: 907162  Size: FP
Click here for detailed picture of above image.

  Document ID# 1199512
1998 Saturn SL2/SC2/SW2