Document ID# 1199583
1998 Saturn SL2/SC2/SW2
 

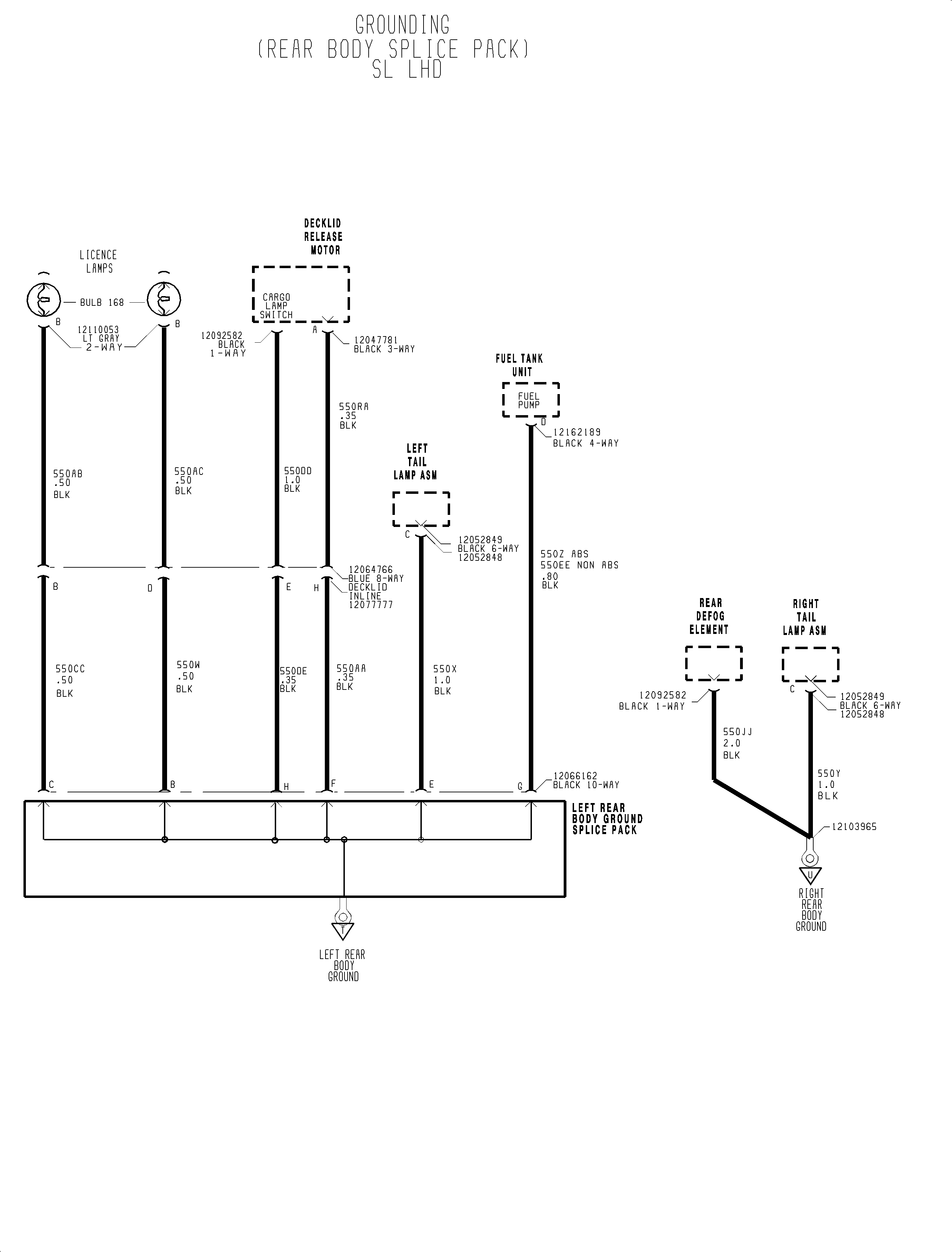
FIGURE Left Rear Body Ground Splice Pack (Sedan)(c)


Object Number: 907406  Size: FP
Click here for detailed picture of above image.

  Document ID# 1199583
1998 Saturn SL2/SC2/SW2