Document ID# 1199942
1998 Saturn SL2/SC2/SW2
 

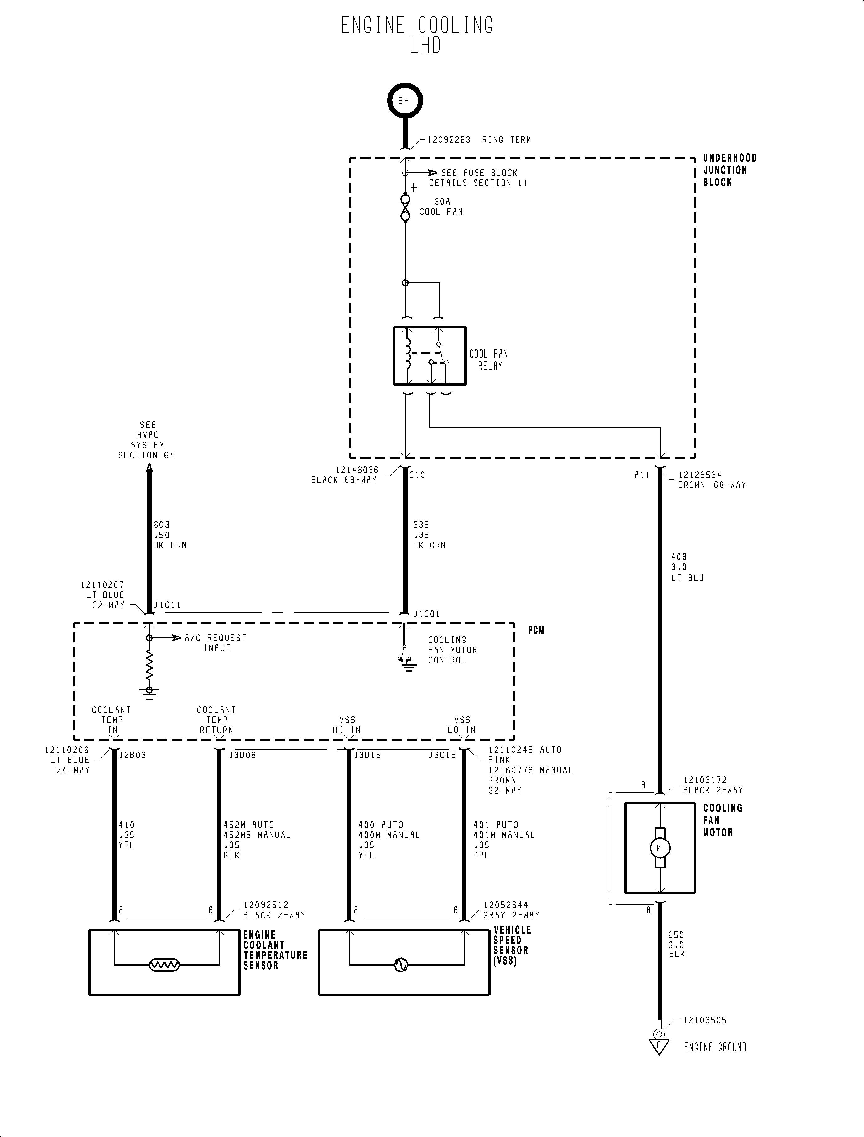
Engine Cooling Schematics

FIGURE Engine Cooling Fan(c)


Object Number: 907826  Size: FP
Click here for detailed picture of above image.

  Document ID# 1199942
1998 Saturn SL2/SC2/SW2