Document ID# 1201329
1998 Saturn SL2/SC2/SW2
 

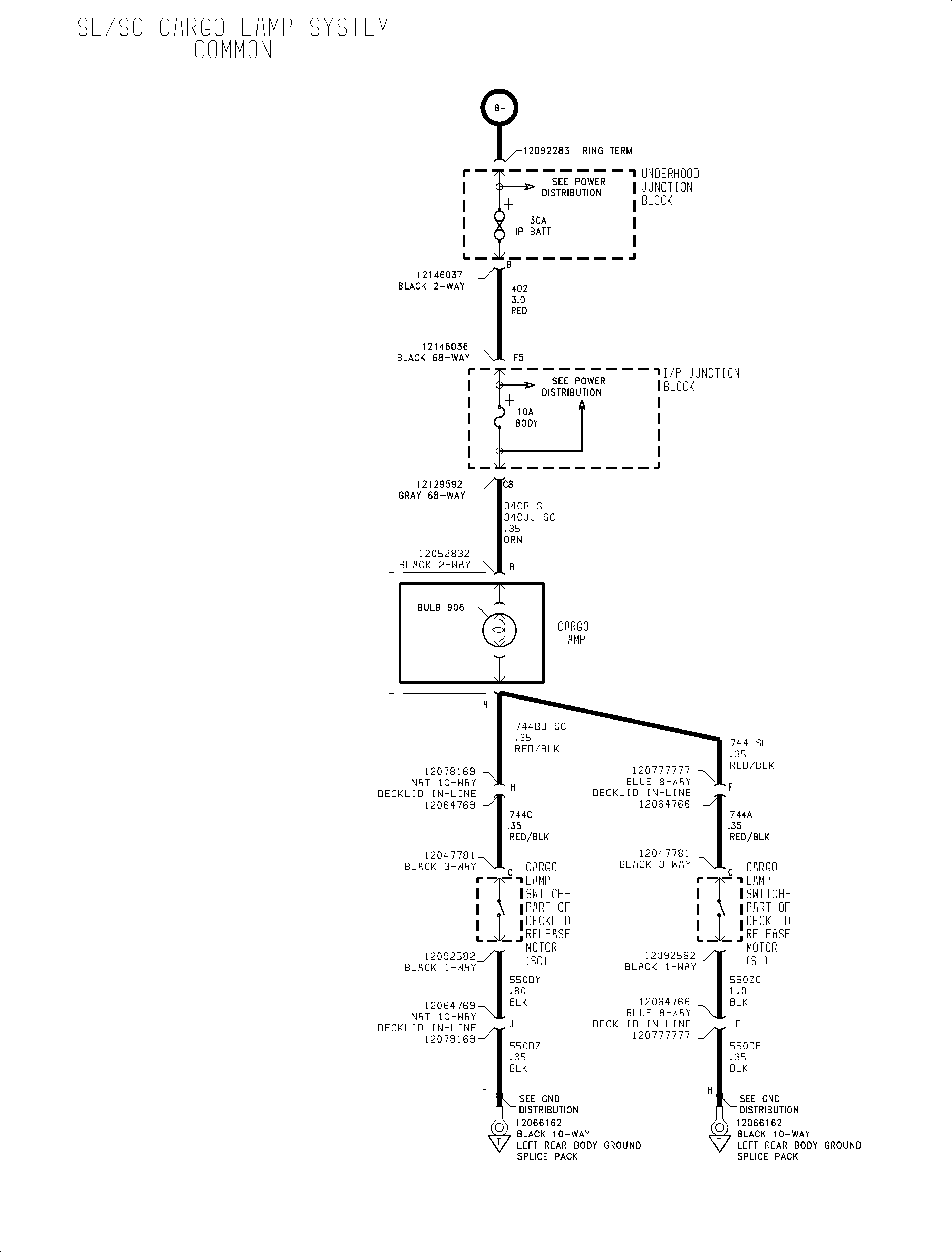
FIGURE Cargo Lamp-Sedan/Coupe(c)


Object Number: 908515  Size: FP
Click here for detailed picture of above image.

  Document ID# 1201329
1998 Saturn SL2/SC2/SW2