Document ID# 1223042
1998 Saturn SL2/SC2/SW2
 

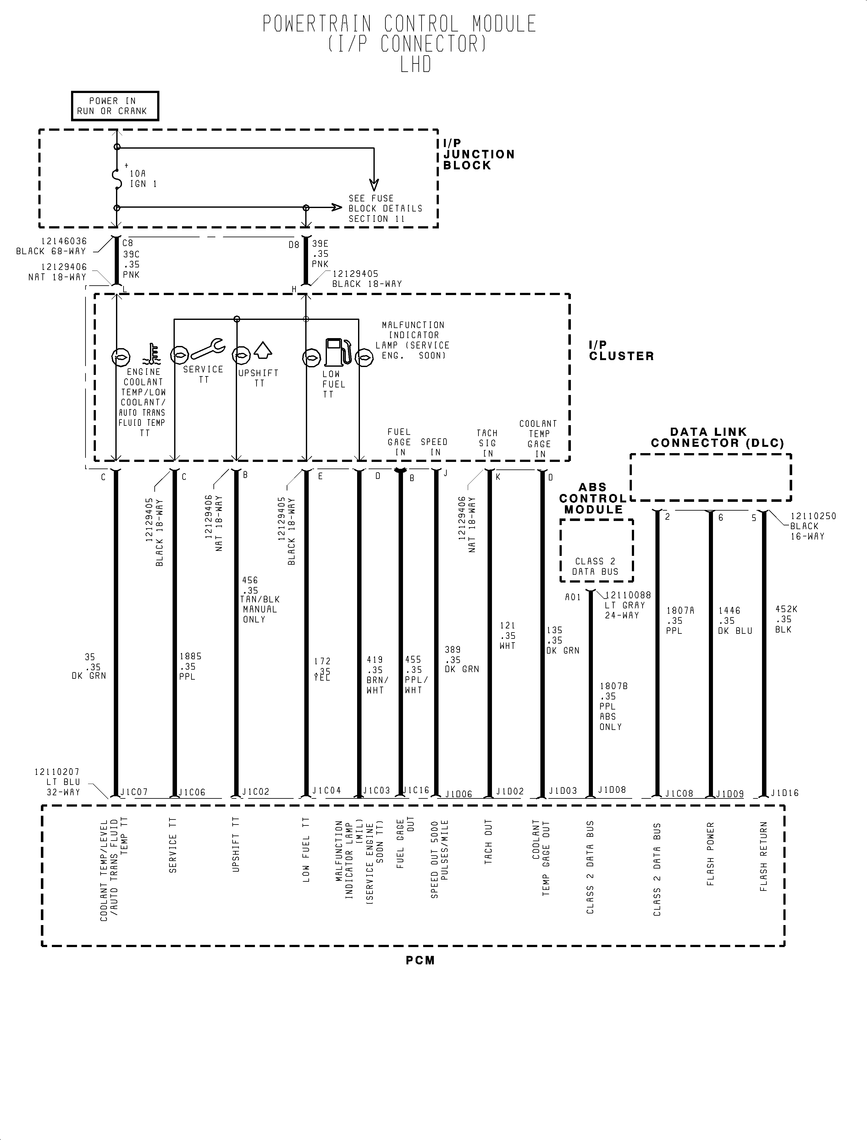
FIGURE 3 of 3(c)


Object Number: 1219341  Size: FP
Click here for detailed picture of above image.

  Document ID# 1223042
1998 Saturn SL2/SC2/SW2