Document ID# 1201505
1998 Saturn SL2/SC2/SW2
 

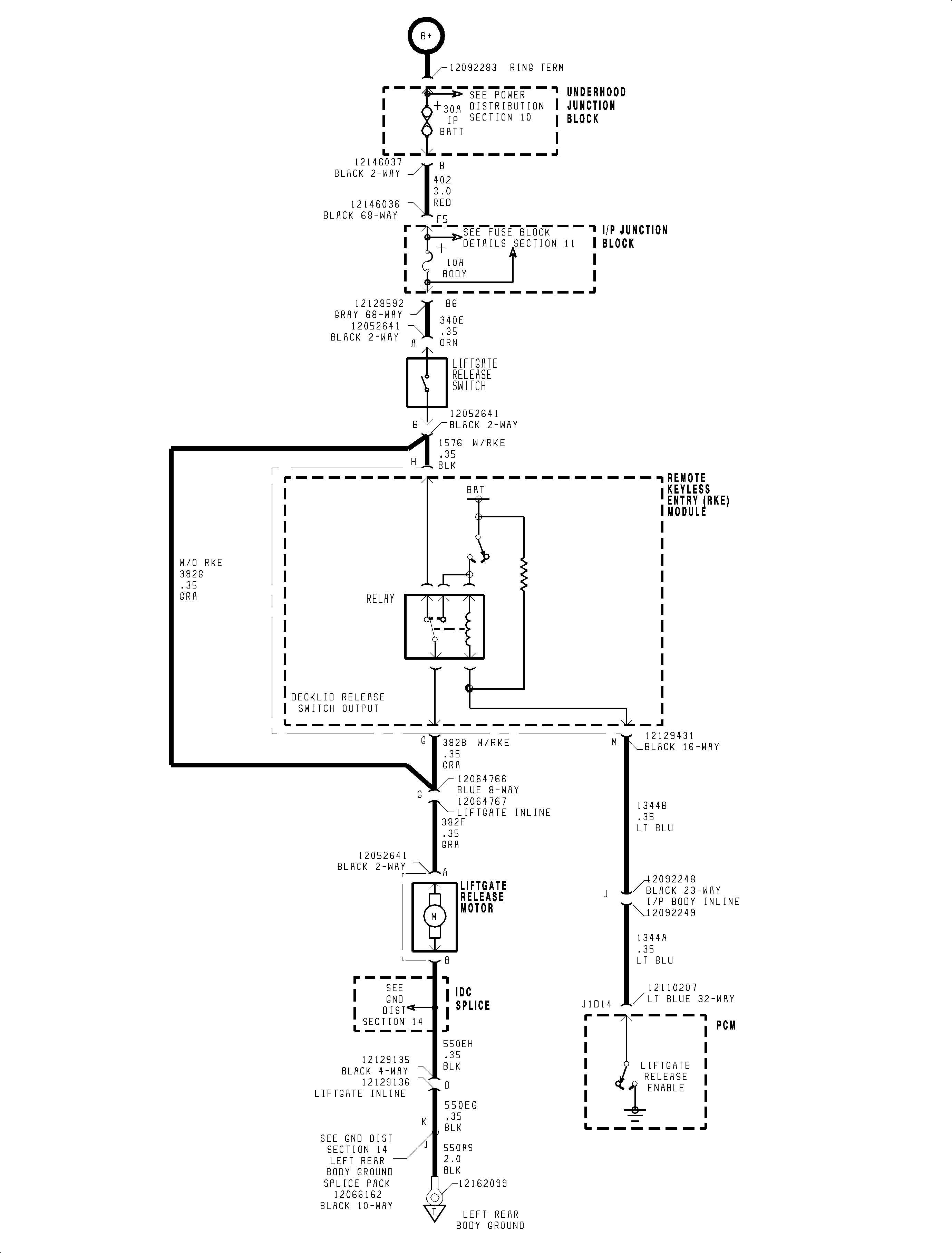
FIGURE Decklid/Liftgate Release-Wagon Only (1998-1999)(c)


Object Number: 908821  Size: FP
Click here for detailed picture of above image.

  Document ID# 1201505
1998 Saturn SL2/SC2/SW2