Document ID# 1201259
1998 Saturn SL2/SC2/SW2
 

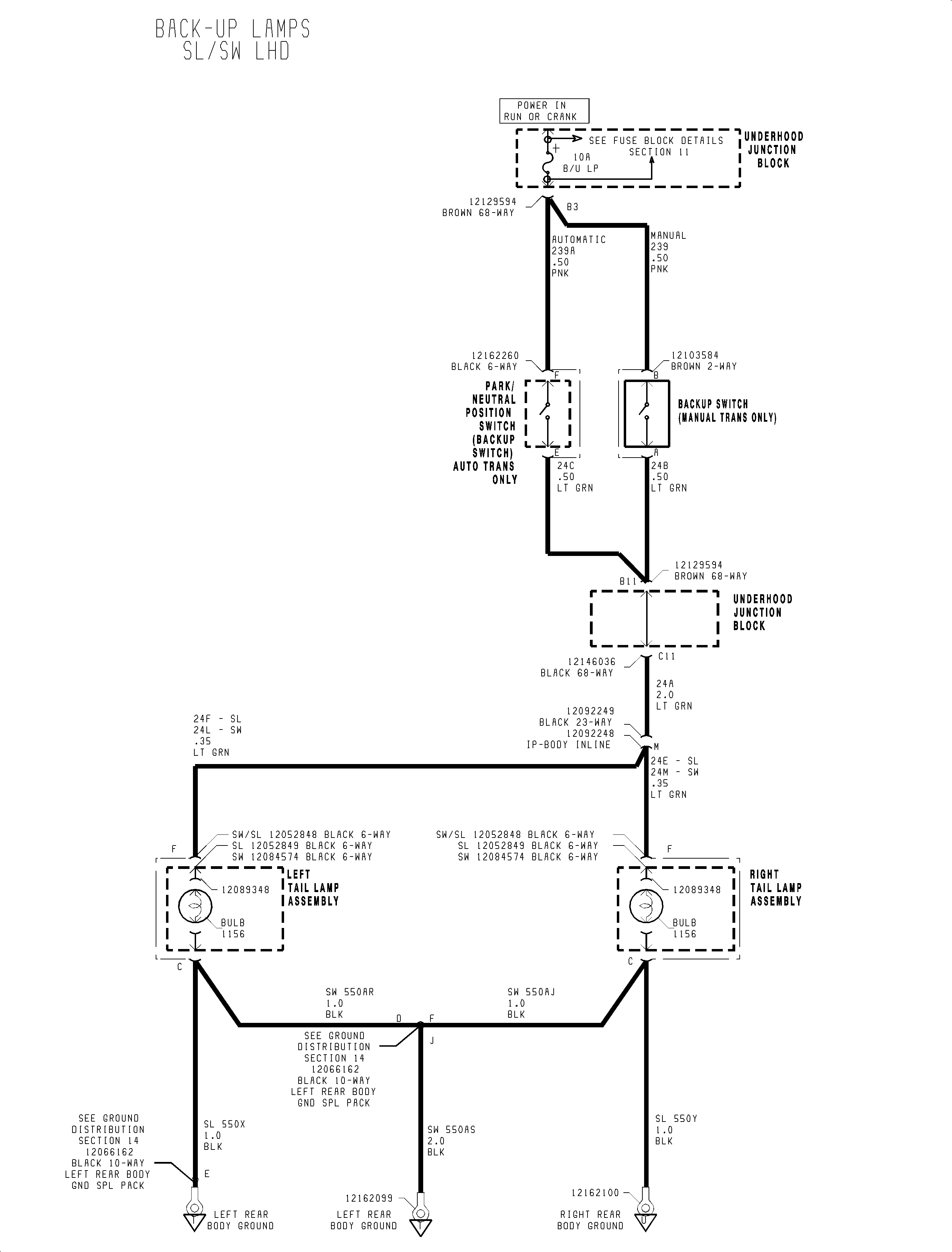
FIGURE Back-up Lamps Sedan Wagon (1998-1999)(c)


Object Number: 908164  Size: FP
Click here for detailed picture of above image.

  Document ID# 1201259
1998 Saturn SL2/SC2/SW2