Document ID# 1199585
1998 Saturn SL2/SC2/SW2
 

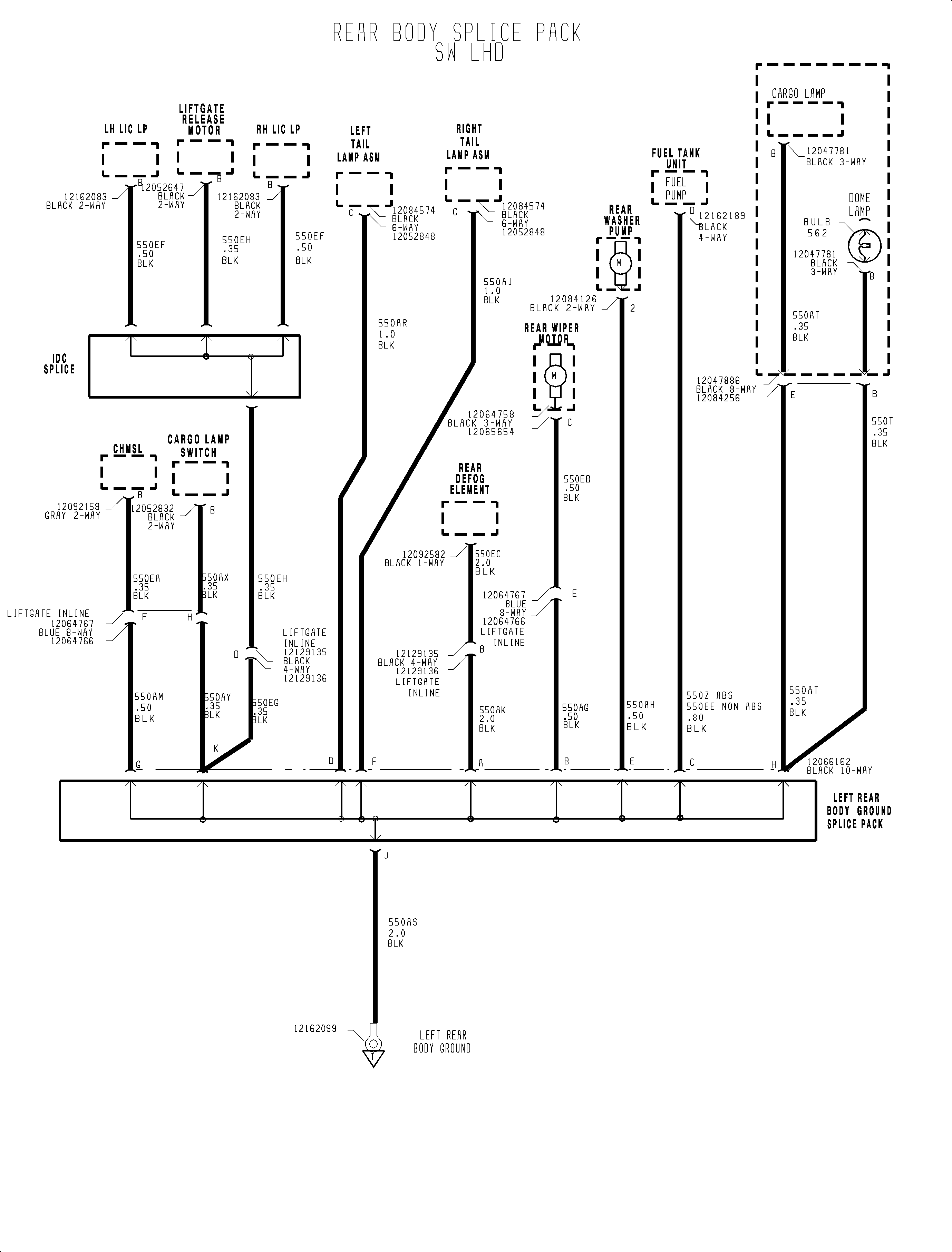
FIGURE Left Rear Body Ground Splice Pack (Wagon)(c)


Object Number: 907409  Size: FP
Click here for detailed picture of above image.

  Document ID# 1199585
1998 Saturn SL2/SC2/SW2