Document ID# 1201412
1998 Saturn SL2/SC2/SW2
 

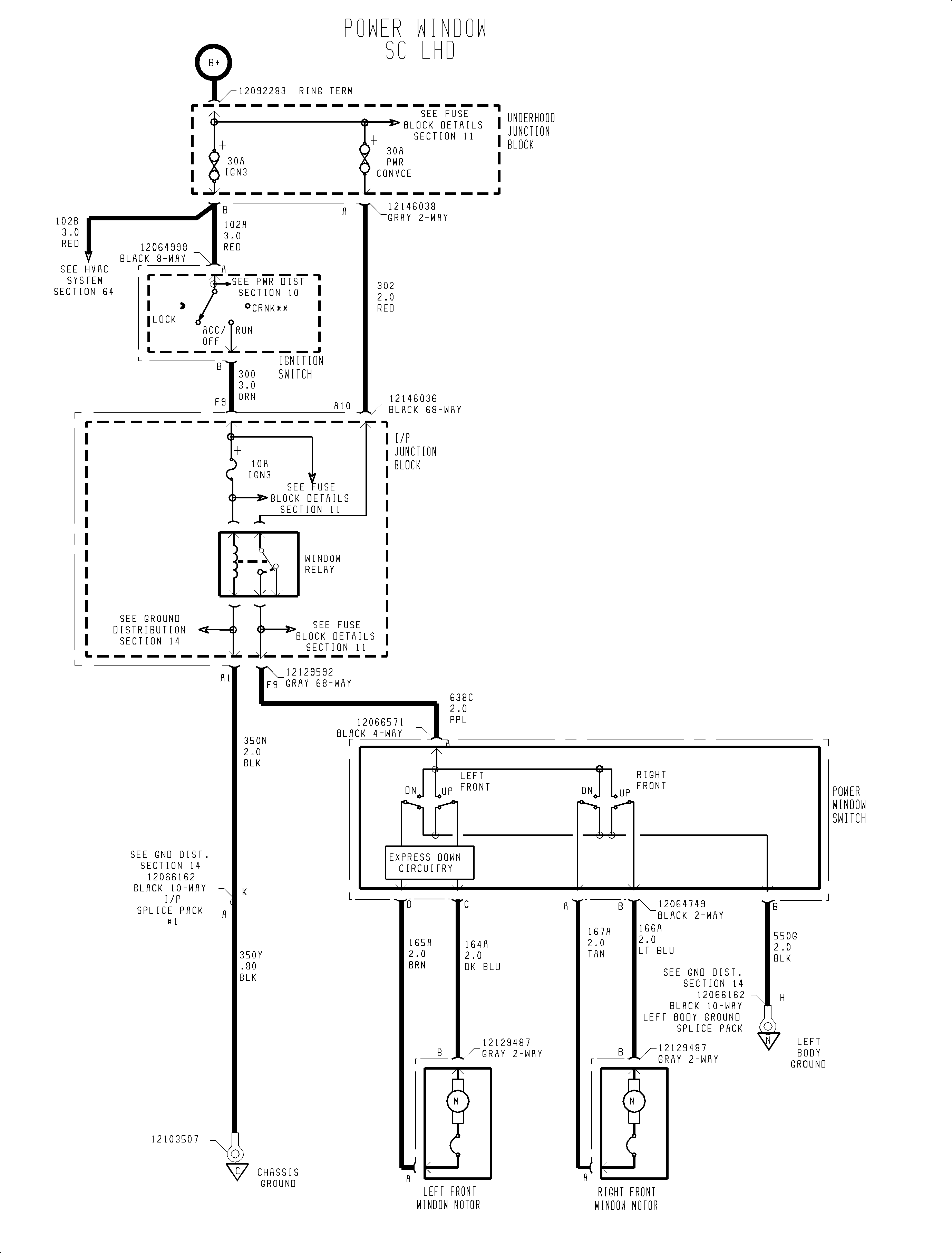
FIGURE Power Windows-Coupe(c)


Object Number: 908556  Size: FP
Click here for detailed picture of above image.

  Document ID# 1201412
1998 Saturn SL2/SC2/SW2